PROPERTY SUMMARY
PROPERTY DESCRIPTION
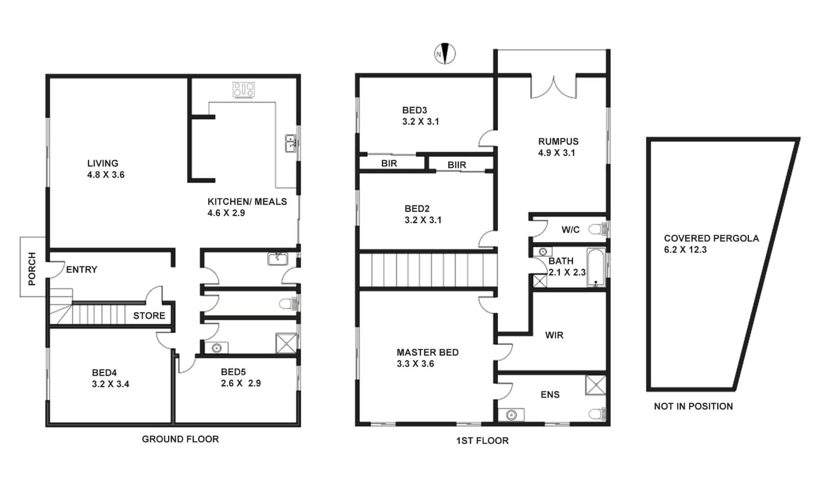
Sahara Real Estate proudly presents this 5- bedroom in the heart of the Rockbank,this home is perfect for the little ones to enjoy with the right mix of comfort and location,walking distance to bus-stop and train station, it is available now.
Ideally located just moments from Rockbank Railway Station,Rockbank Primary School,Bacchus Marsh Grammar School,Child care,Aintree primary school,Woodlea town centre and easy access to Western Freeway which offer you and your family with the ease of convenience.
Features include:
– Master with walk-in-robe and en-suite ( upstairs)
– Other two generous sized bedrooms with built-in-robe
– Two bedrooms downstairs
– Kitchen with brand New stainless steel appliances
– Adjoining kitchen is open-plan living and meal areas
– Formal front lounge room being perfect to working from home or study
– Central bathroom with separate toilet (upstairs)
– Split system air-con in the 2* lounge room
– Good sized alfresco
***If this property is of interest to you, please click on the” Apply” button to secure this Home ***
Photo ID must be presented upon all inspections.
Please see the below link for an up-to-date copy of the Due Diligence Checklist: http://www.consumer.vic.gov.au/duediligencechecklist
DISCLAIMER: All stated dimensions are approximate only. Particulars given are for general information only and do not constitute any representation on the part of the vendor or agent















