PROPERTY SUMMARY
PROPERTY DESCRIPTION
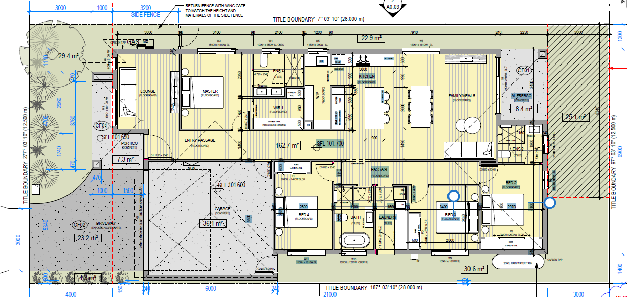
Sahara Real Estate proudly presents this 4-bedroom home in a highly sought-after Stadio Estate in Tarneit. Picture-perfect inside and out, this is an ideal family home that delivers an environment that’s ready to simply move in and enjoy. This beautiful single story residence which is at an outstanding location offers excellent opportunities to families, first home buyers and investors alike. This house is one of the top locations in Tarneit with comfort, security, safety and peace of mind all in one place. Located in a prime, thriving and beautifully placed “Stadio Estate” in the well-established suburb, “Tarneit”.
Stunning 4 Bedroom Haven
Don’t miss this exceptional opportunity to own a brand-new home in Greenvale’s most sought-after location!
Key Features:
– 350 sqm land
– 4 spacious bedrooms
– 3 stylish bathrooms
– 2 Living rooms
– 2-car garage
– Modern design with high-quality finishes
Package Details:
– Land size: 350 sqm
– Dwelling size: 23sq
– Total price: $695,000
FULL TURNKEY INCLUSIONS:
• 40mm Caesarstone Benchtop to Kitchen
• Dishwasher – Stainless Steel
• Wing fencing, fencing and gate on the side
• Refrigerated heating/Cooling throughout the house
• 2.7m high ceiling throughout
• 900mm Kitchen Cooktop, Oven and Rangehood
• LED Recessed Downlights
• 20mm Stone benchtop to Ensuite and bathroom
• Letterbox & Clothesline
• Holland Roller Blinds to Windows
• Fly screens
• Upgraded interior high doors and LED lights throughout
• Timber look garage door
• Steel lintel with brick infill above Doors & Windows
• Front, Rear & Side Landscaping
• Tiled shower bases to both bathrooms with floor to ceiling tiled covering
• Exposed Concrete Driveway
• Fixed Site cost, Bushfire & Estate Covenants
To secure this incredible package, contact : Sachin 0425 531 809 or Preet 0433 146 387
Don’t miss out!
Please see the below link for an up-to-date copy of the Due Diligence Check List: http://www.consumer.vic.gov.au/duediligencechecklist
DISCLAIMER: All stated dimensions are approximate only. Particulars given are for general information only and do not constitute any representation on the part of the vendor or agent. Some photos are used from another similar property.


